EN
Translate:
Showroom Open by Appointment Only


###

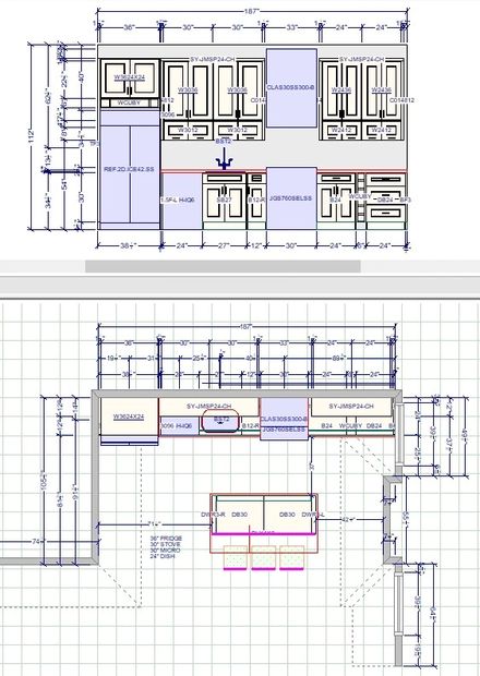
Here is a rendering of the above 2020 Design sketch to be ordered and installed

This is an image of the actual kitchen designed with the 2020 Design software and has been installed followed the generated instructions
Email: office@abestcabinets.com
Phone: (347) 405-8686
Fax: (347) 295-3484
WhatsApp: Click Here
With extended variety of options and
compatible pricing both for cabinets
and countertops, we aim
to ease your day and
assist you in the best possible way.
© Copyright 2018 | A Best Cabinets, Inc.
This website uses cookies. By continuing to use this site, you accept our use of cookies.